お試し住宅で池田町にプチ移住体験しませんか?
- [公開日:]
- [更新日:]
- ID:3847

池田町お試し住宅とは

池田町への移住を検討している方に、最短2日間~最長7日間滞在できる「お試し住宅」をご用意しています。実際に暮らしてみることで、地域の魅力や気候、生活環境を肌で感じていただけます。
「日常の買い物は便利?」「学校や保育園、病院は近い?」「通勤はしやすい?」——そんな気になるポイントを、リアルな暮らしを通じて体験できます。
移住前の不安を少しずつ解消するために、家探しや仕事探しの拠点としてもおすすめです。
この機会に、池田町での暮らしをじっくり体感してみてください。
項目 | 詳細内容 |
---|---|
所在地 | 長野県北安曇郡池田町大字池田2077-8 |
住宅詳細 |
|
利用対象者 | 町外在住の池田町に移住を希望する方で、入居期間中に池田町役場移住定住係からの案内を受けられる方 |
滞在期間 | 2泊3日から7泊8日まで チェックインは午後2時~4時までの間(平日のみ)、チェックアウトは午前9時~11時の間(平日のみ)となります。 |
使用料金 | 1泊4,000円 |
設備・備品 | 設備・備品一覧は、こちらをご覧ください(PDF形式、88.74KB) |

ご利用状況
お試し住宅の予約状況は、下記のGoogleカレンダーにてご確認いただけます。
※カレンダーは随時更新しておりますが、反映に時間がかかる場合があります。
最新の予約状況につきましては、移住定住係まで問い合わせてください。(電話:0261-62-3131)

注意事項
- お試し住宅は、池田町に移住を希望する方が利用することを目的に設置された住宅です。観光を目的とした利用はご遠慮願います。
- お試し住宅は、ホテルや旅館ではありません。暮らしに必要な物品の準備、掃除などは利用者自身でお願いします。
- お試し住宅や役場までの送り迎えのサービスはございません。町営バスが走っていますが、本数が少ないため、できるだけお車でお越しになることをおすすめします
- インターネット環境はありません。
- ペットの持ち込みはご遠慮ください。
- 施設内、敷地内は禁煙です。
- 寝具は、お持ち込みいただくか、業者からレンタルしてください。レンタル業者はご紹介いたします。
- ゴミは、池田町が規定する分別を行い、ゴミ袋にまとめてください(町指定のゴミ袋を用意してあります)。ゴミ袋は、必ず役場ゴミステーションに持参し捨ててください。

ご利用の流れ

(1)仮予約
- 利用開始希望日の3か月前から21日前までに、下記仮予約フォームよりお申込みください。
- 3営業日以内に、お申込みいただいた日程を確認後、利用日確定のご案内を移住定住係よりメールにてお送りいたします。

(2)本申込み
- 利用開始日の10日前までに、「池田町お試し住宅申請書」と「本人確認ができる書類(免許証またはマイナンバーカード等)をメールで提出してください。

(3)利用許可通知
- 審査後、「使用許可証」を移住定住係よりメールでお送りします。

(4)チェックイン当日
- お申し込みされたチェックインの時間に、池田町役場総務課移住定住係の窓口(5番窓口)までお越しください。
- 窓口にて、利用料金の精算やご利用方法の説明、住宅の鍵の受け渡し等を行います。※お支払い方法は現金のみとなっています。
- 初日または滞在中に移住定住係よる移住相談や町内案内をいたします。

(5)チェックアウト当日
- お申込みされたチェックアウトの時間に、池田町役場総務課移住定住係の窓口までお越しください。
- 住宅の鍵のご返却と利用アンケートをご提出いただくと、チェックアウト完了となります。

施設情報

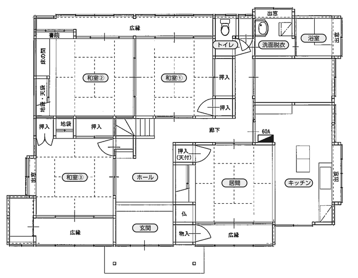
間取り図


施設内写真
玄関

キッチン
居間
和室1
和室2
和室3
トイレ
洗面・脱衣所
風呂
廊下
駐車スペース

滞在中の移住支援について
池田町では、移住をご検討いただいている方に向けて、さまざまな支援を行っております。 お気軽にご相談ください。
- 定住アドバイザー(別ウインドウで開く)
- 移住協力店(別ウインドウで開く)
- 町内案内(役場の車でご案内します)

お試し住宅所在地

お試し住宅の周辺について
池田町のお試し住宅は、町の中心部にあり、日々の暮らしに便利な施設がそろっています。周辺マップはただいま準備中ですが、滞在中は公民館や図書館、飲食店やスーパーなど、身近にあるスポットをぜひ訪れてみてください。

お試し住宅チラシ・設置要綱
池田町お試し住宅チラシ
池田町お試し住宅設置要綱
お問い合わせ
池田町(いけだまち) 総務課 移住定住係(お試し住宅と問い合わせてください)
電話: 0261-62-3131 (土曜日、日曜日休日及び閉庁時のお問い合わせはご遠慮ください)
電話: 0261-62-3131 (土曜日、日曜日休日及び閉庁時のお問い合わせはご遠慮ください)